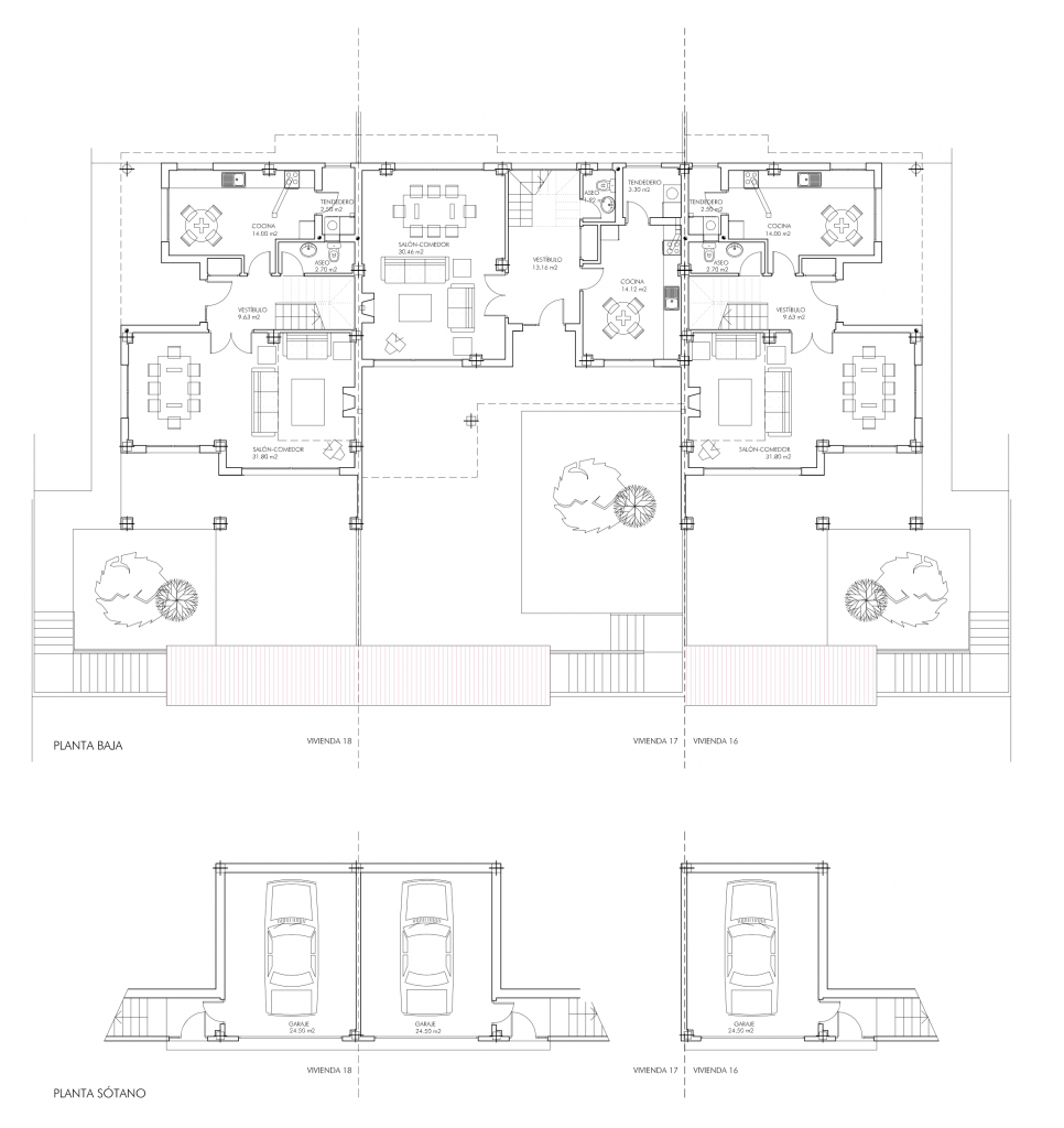
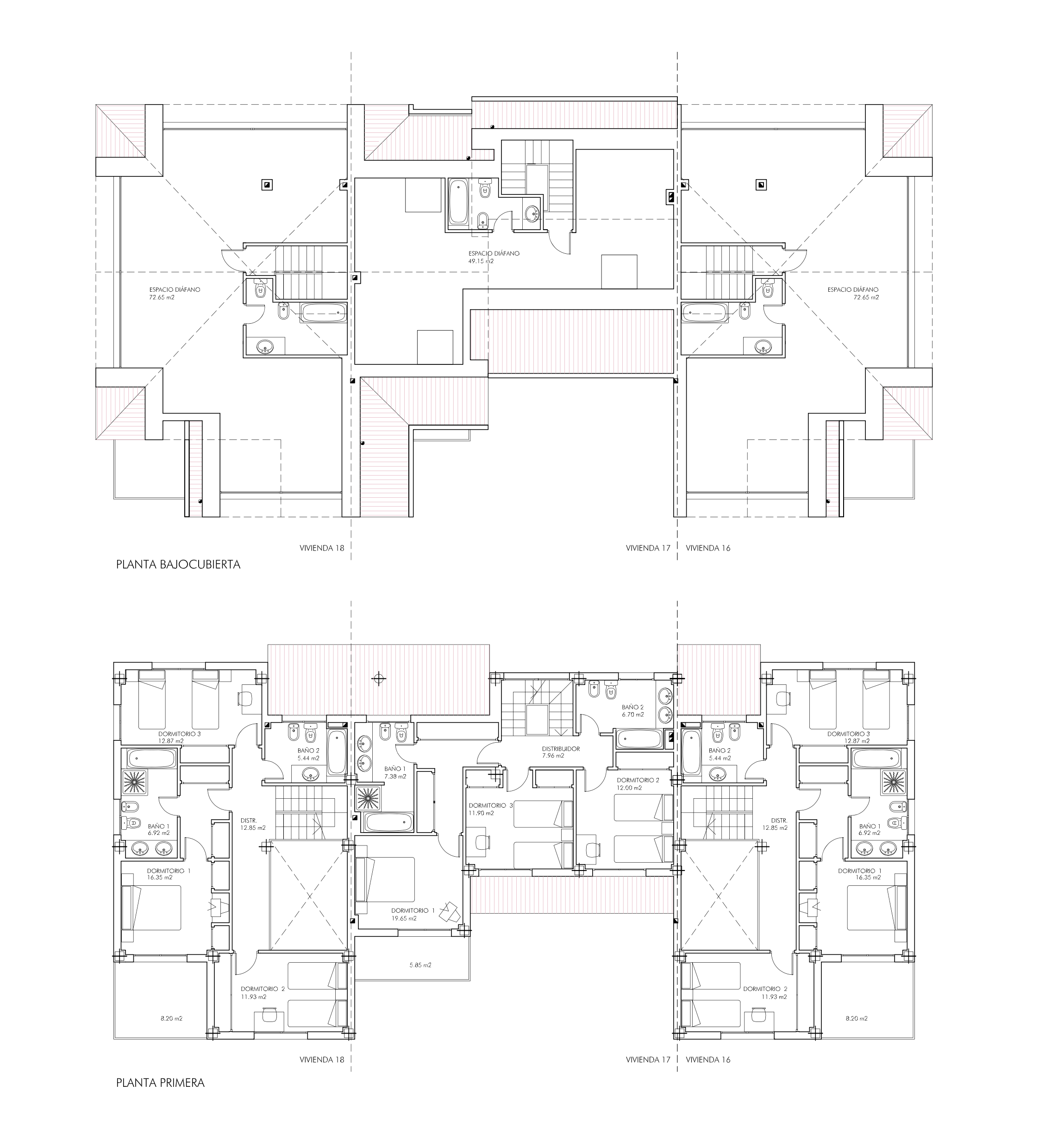
CHALET Nº 17

Chalet adosado y pareado de 208 m² útiles en parcela de 255 m² aproximadamente. Cuenta con tres dormitorios, dos baños completos, buhardilla y garaje para un coche. 

PLANTA SOTANO GARAJE

SUPERFICIE ÚTIL

24,5 M²

ACCESO PLANTA BAJA

SUPERFICIE ÚTIL

62,96 M²

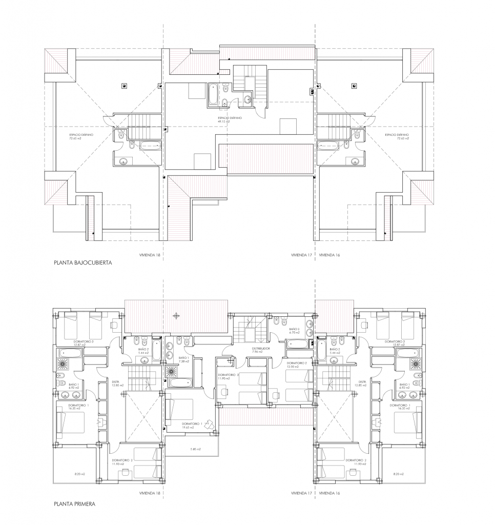
PLANTA PRIMERA

SUPERFICIE ÚTIL

71,44 M²

BAJO CUBIERTA

SUPERFICIE ÚTIL

49,15 M²

SUPERFICIE ÚTIL APROXIMADA TOTAL:

208,05 M²

SUPERFICIE DE PARCELA

214,94 M²

¿INTERESADO EN ESTA PROPIEDAD?

Ponte en contacto con nosotros:

Planos:

PLANTA SOTANO GARAJE

PLANTA BAJA

PLANTA PRIMERA

BAJO CUBIERTA

PLANO

PLANTA BAJA

PLANO

P. PRIMERA Y B. CUBIERTA

FOTOGRAFÍAS DE LA PROMOCIÓN ANTERIOR

Estas imágenes no se corresponden con el resultado final del Chalet Nº 12, son meramente ilustrativos, con el fin de aportar una idea sobre un resultado final aproximado.

¿Interesado en alguna de nuestras propiedades?

CONTACTA CON NOSOTROS

Si tienes dudas o consultas, por favor, contacta con nosotros y te responderemos tan pronto como nos sea posible.